Here's your chance to secure a beautifully presented duplex home in a quiet Pambula Beach cul-de-sac, close to the beach and backing onto peaceful bush reserve.
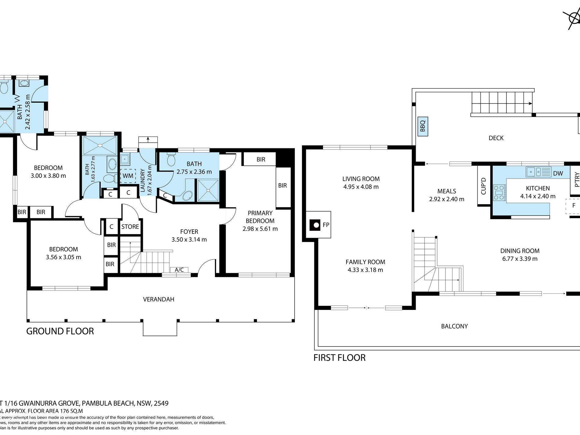
As you walk in you'll notice the property has been looked after with love, built with care and intelligently planned from the ground up. Downstairs you'll find a spacious light-filled entrance with original hardwood floors, reverse cycle a/c, three generous bedrooms with built-in robes, each with access to their own bathroom, laundry and access to the shared large level 2400m2 block.
In 1989 a well-considered extension was made to the original structure, creating a whole additional upstairs level. This is where the magic happens: open-plan living, combined gas/electric cooking and dishwasher in the kitchen, a cosy wood fire and ducted reverse cycle air-conditioning for winter evenings or summer afternoons, and two exceptional outdoor spaces. The north east-facing front deck takes in ocean views across to Long Point in Merimbula, perfect for morning coffee. While the spacious covered rear balcony with vertical awning makes another living area entirely. Rain or shine, summer or winter, this all-weather space overlooks peaceful bushland where birds sing and kangaroos graze.
Pambula Beach, Surf Club and School catering for students from Kindergarten - Year 12 are within easy walking distance, you're only 2km from Pambula Village with its historic streets, boutique shopping and craft breweries.
Merimbula's shopping and cafes are five minutes up the road, and the airport sits just 3.7km away with direct flights to Sydney and Melbourne.
This is Far South Coast living done right: coastal walks through Beowa National Park, pristine beaches in both directions, the Panboola Wetlands teeming with birdlife, fresh oysters from Pambula Lake, and genuine space to breathe. The property is registered on Strata Hub with shared water and insurance costs - low-maintenance, high-opportunity, and surrounded by nature.
Key Features:
• Three bedrooms with built-in robes, three bathrooms
• Original hardwood floors downstairs, new floating floors in upstairs living area
• Ducted reverse cycle air-conditioning upstairs and reverse cycle a/c downstairs
• Combined gas/electric cooking, dishwasher, and wood fireplace
• North East-facing front deck with ocean views to Long Point in Merimbula
• Covered rear deck with vertical awning - all-weather living
• Quiet cul-de-sac location backing bush reserve, close to beach and short walk to Lumen Christi School/College ('K to Year 12')
• Automatic Garage plus workshop space
• Generous storage throughout and freshly painted upstairs
Features
- Ducted Heating
- Open Fireplace
- Ducted Cooling
- Split-System Heating
- Balcony
- Deck
- Outdoor Entertainment Area
- Remote Garage
- Built-in Wardrobes
- Workshop
- Dishwasher





































































